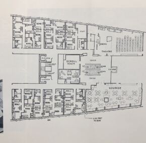
Deck Plan, Third Class 1950’s/1960’s
Item Number: 32777 $35.00Order Details
To place an order, contact us by clicking the button below.
Once we receive your order, we will notify you by email then invoice you for the above amount including shipping.
Product Description
Tourist-class plan dating from the 1950’s and 1960’s. Well illustrated and folds open to 32″ x 8½”.


